
随着国家经济的发展,文化和教育领域日新月异。诸多教育品牌也在进行提升与设计,激扬有幸参与这一块,以塑造品牌的方法,推动其事业的发展。
今天请与大家简短分享佛山溶洲幼儿园项目。多年来,激扬跟园方持续合作,深切感受到村委、曾园长对教育事业的投入和支持,十分难忘。

@2015-2016年改造完工

| 改造中庭,创造性地解决噪音问题
最近的这一次,是2020年中庭改造。如我们所目见的,它是一个覆盖透明顶的中庭,南方雨热多,便于孩子下雨了也有活动处。曾园长原计划是请激扬,帮忙重新设计一下这里的柱面。但谈话时,周围幼儿们活动产生的声音和回音,却让人无法在中庭久留。

是的,回音太严重了。改造的同时,必须把噪音问题也化解了,才是根本的!无疑,穹形的顶棚,是一大回音壁。但顶棚如此完好,破除了很可惜,也影响雨热天使用。中空悬挂吸引材料?难度大,花费大,效果也不一定好。

![]()
激扬最后建议,在四周柱墙上都贴上吸音条,这样既吸除了噪音,改造后的柱身墙面,也可以用来做合适的展示。

@2020年,改造完工
激扬一直认为,设计就是创造性地解决客户品牌或项目中存在的问题。设计的价值,这就是。它从来不是美化,装修,而是创造性解决问题。
| 再造音体室,增开折叠门扩展场地
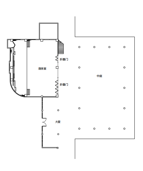
与中庭一门相隔的,是溶洲幼的多功能音体室。

音体室与中庭空间关系示意
这个音体室在改造之初,考虑幼儿园使用之外,也提供给村里开大会,但它本身的面积较小,难以满足场地需求。如何在完善室内品牌空间再造的同时,也拓展空间供给呢?激扬以一道长长的折叠门,创造性地解决了这一问题,既方便又节省开支,只要打开门,就可将中庭空间延纳进来。中庭噪音问题化解之后,这里变得更加静好!


@2020年前,改造完工
特别感谢村委支持,感谢园方充分信任,感谢施工方保质保量,让设计方案最终一一成就!激扬的设计师@阿万 拍了又拍,再来两张!设计师的双份快乐,就是真切且完善地解决了问题,还恰好很美!


@阿万
早在2014-15年,激扬就为溶洲幼儿园设计了新LOGO,并以其辅助形和色,开启了这一趟园所品牌形象创建升级之旅。




@2017年前 改造完工
借这个小小的回顾,祝福佛山溶洲幼儿园和这里的孩子们,更好地成长,长育更好的智慧果!
广州激扬品牌策划有限公司
地址:广州海珠区 新港西路82号 中大门纺织总部西D梯D501/503
备案号:粤ICP备19136162号
热线:400-668-0538
微信号:meonlyonly(高级咨询顾问)
激扬品牌服务:
策略与定位 品牌创建与提升设计 理念提炼及命名 品牌VI设计 建筑空间设计与改造 品牌整合推广及战略咨询
